Vendita
APPARTAMENTO TRILOCALE IN VENDITA A VIGUZZOLO IN CENTRO
VIGUZZOLO (AL)
€ 40.000
PEDEMONTE MASSIMO
VENDE
APPARTAMENTO TRILOCALE TERMOAUTONOMO
ZERO SPESE CONDOMINIALI
A VIGUZZOLO
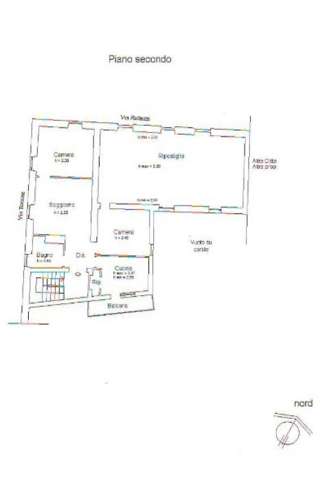
IN CENTRO - VIA TORTONA
L'immobile si trova nel centro del paese in zona tranquilla e comoda ai servizi.
Si presenta in modiche condizioni ma volendo è abitabile subito ed è anche già imbiancato.
Molto luminoso, si trova all'ultimo piano di una palazzina di 2 piani
Ha un'ampiezza di mq 150 suddivisi tra: mq 75 di alloggio
+ 75 mq di sottotetto nel quale, con un'adeguata ristrutturazione, si possono ricavare altri 2 locali.
E' composto da: ingresso, soggiorno, cucina abitabile, 1 bagno, 2 camere da letto molto ampie e 1 balcone.
Non dispone di garage ma è possibile utilizzare il comodo parcheggio pubblico sotto casa.
Riscaldamento autonomo.
Zero spese condominiali
VISITATE IL NOSTRO SITO:
www.pedemontemassimomediatore.com
CONTATTATECI per avere tutte le informazioni che desiderate:
tel. 0131/868477
e-mail: info@pedemontemassimomediatore.com
CI TROVATE:
a Tortona in Via Emilia n. 54 (Piazza Malaspina)
dal lunedì al venerdì
dalle 9.00 alle 13.00 e dalle 15.00 alle 19.00
VENDE
APPARTAMENTO TRILOCALE TERMOAUTONOMO
ZERO SPESE CONDOMINIALI
A VIGUZZOLO
IN CENTRO - VIA TORTONA
L'immobile si trova nel centro del paese in zona tranquilla e comoda ai servizi.
Si presenta in modiche condizioni ma volendo è abitabile subito ed è anche già imbiancato.
Molto luminoso, si trova all'ultimo piano di una palazzina di 2 piani
Ha un'ampiezza di mq 150 suddivisi tra: mq 75 di alloggio
+ 75 mq di sottotetto nel quale, con un'adeguata ristrutturazione, si possono ricavare altri 2 locali.
E' composto da: ingresso, soggiorno, cucina abitabile, 1 bagno, 2 camere da letto molto ampie e 1 balcone.
Non dispone di garage ma è possibile utilizzare il comodo parcheggio pubblico sotto casa.
Riscaldamento autonomo.
Zero spese condominiali
VISITATE IL NOSTRO SITO:
www.pedemontemassimomediatore.com
CONTATTATECI per avere tutte le informazioni che desiderate:
tel. 0131/868477
e-mail: info@pedemontemassimomediatore.com
CI TROVATE:
a Tortona in Via Emilia n. 54 (Piazza Malaspina)
dal lunedì al venerdì
dalle 9.00 alle 13.00 e dalle 15.00 alle 19.00
Contratto Vendita
Rif 553/5
Prezzo € 40.000
Provincia Alessandria
Comune Viguzzolo
Indirizzo Via Tortona">
Vani 3
Camere 2
Bagni 1
Classe energetica
Non indicata
Piano 2 / 2
Riscaldamento autonomo
Condizioni abitabile
Spese condominiali € 1
Anno di costruzione 1900
Cucina abitabile
Consistenze
| Descrizione | Superficie | Sup. comm. |
|---|---|---|
| Principali | ||
| Immobile - 2° piano | 150 Mq | 150 Mqc |
| Totale | 150 Mqc | |
Zoom della mappa
Apri con:
Apple Maps
Google Maps
Waze
Apri la mappa

















