Vendita
PALAZZINA D'EPOCA DA RISTRUTTURARE IN VENDITA A TORTONA
TORTONA (AL)
€ 300.000
MASSIMO PEDEMONTE
PROPONE
PALAZZINA D'EPOCA IN VENDITA
A TORTONA CENTRO STORICO - VIA P. PERNIGOTTI
La palazzina, costruita ai primi del 900, è molto bella e allo stesso modo riservata in quanto è racchiusa all'interno di un cortile ben protetto.
E' ubicata in posizione molto particolare in quanto si trova nella via principale della città dove tutti i servizi sono a portata di mano e gode anche di una bellissima vista sulla verde zona collinare del Convento dei Cappuccini.
L'immobile, da ristrutturare, ha il tetto nuovo. Possibilità di visionare e utilizzare diverse soluzioni progetti abbozzati.
Ha un'ampiezza complessiva di 600 mq circa
Disposta su 3 piani è attualmente così suddivisa:
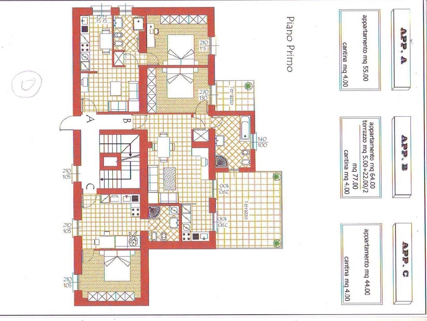
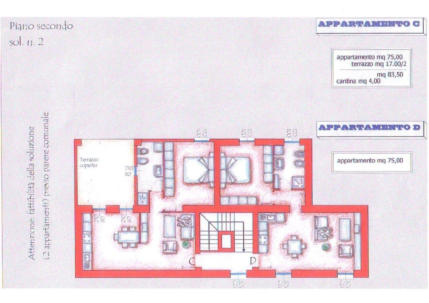
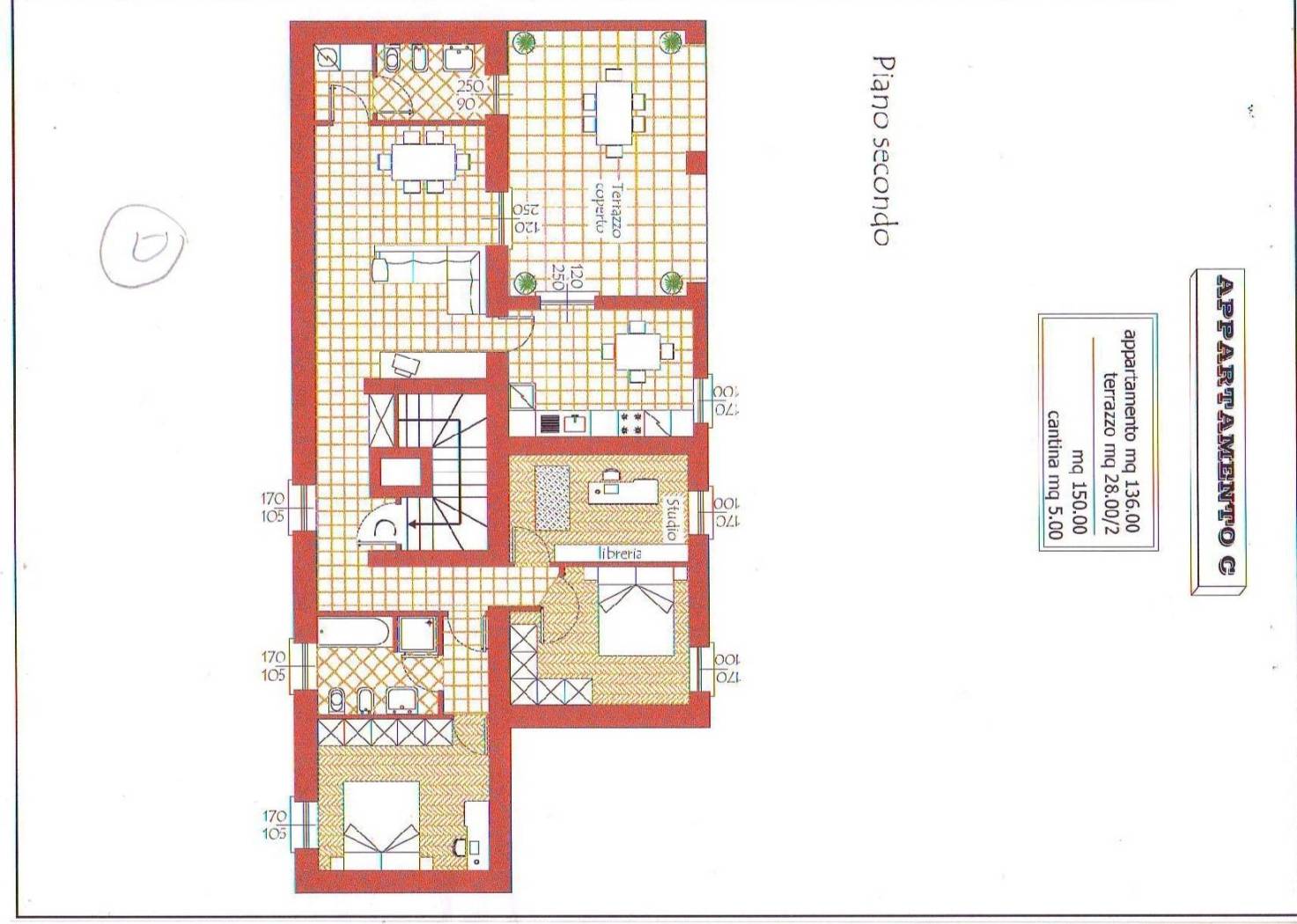
1° PIANO un unità di mq 150
2° PIANO un unità di mq 150
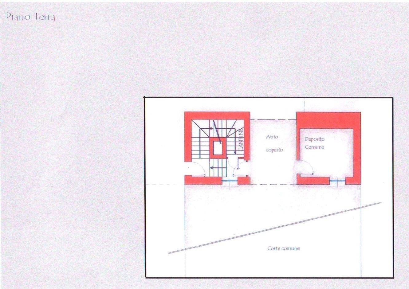
PIANO TERRA di mq 300 costituito da un locale ideale per palestra, uffici, studi medici ...
SEMINTERRATO cantinato con volte a botte in mattoni a vista
POSSIBILITA' DI ACQUISTO IN BLOCCO O FRAZIONATO
PREZZO DI VENDITA RICHIESTO Eu. 500 LA MQ
VISITATE IL NOSTRO SITO:
www.pedemontemassimomediatore.com
CONTATTATECI per avere tutte le informazioni che desiderate:
tel. 0131/868477
e-mail: info@pedemontemassimomediatore.com
CI TROVATE:
a Tortona in Via Emilia n. 54 (Piazza Malaspina)
dal lunedì al venerdì
dalle 9.00 alle 13.00 e dalle 15.00 alle 19.00
PROPONE
PALAZZINA D'EPOCA IN VENDITA
A TORTONA CENTRO STORICO - VIA P. PERNIGOTTI
La palazzina, costruita ai primi del 900, è molto bella e allo stesso modo riservata in quanto è racchiusa all'interno di un cortile ben protetto.
E' ubicata in posizione molto particolare in quanto si trova nella via principale della città dove tutti i servizi sono a portata di mano e gode anche di una bellissima vista sulla verde zona collinare del Convento dei Cappuccini.
L'immobile, da ristrutturare, ha il tetto nuovo. Possibilità di visionare e utilizzare diverse soluzioni progetti abbozzati.
Ha un'ampiezza complessiva di 600 mq circa
Disposta su 3 piani è attualmente così suddivisa:
1° PIANO un unità di mq 150
2° PIANO un unità di mq 150
PIANO TERRA di mq 300 costituito da un locale ideale per palestra, uffici, studi medici ...
SEMINTERRATO cantinato con volte a botte in mattoni a vista
POSSIBILITA' DI ACQUISTO IN BLOCCO O FRAZIONATO
PREZZO DI VENDITA RICHIESTO Eu. 500 LA MQ
VISITATE IL NOSTRO SITO:
www.pedemontemassimomediatore.com
CONTATTATECI per avere tutte le informazioni che desiderate:
tel. 0131/868477
e-mail: info@pedemontemassimomediatore.com
CI TROVATE:
a Tortona in Via Emilia n. 54 (Piazza Malaspina)
dal lunedì al venerdì
dalle 9.00 alle 13.00 e dalle 15.00 alle 19.00
Contratto Vendita
Rif 709/5
Prezzo € 300.000
Provincia Alessandria
Comune Tortona
Indirizzo Via Pietro Pernigotti">
Vani 4
Bagni 2
Classe energetica
Non indicata
Riscaldamento inesistente
Condizioni da ristrutturare
Anno di costruzione 1900
Consistenze
| Descrizione | Superficie | Sup. comm. |
|---|---|---|
| Principali | ||
| Immobile - piano terra | 300 Mq | 300 Mqc |
| Immobile - 1° piano | 150 Mq | 150 Mqc |
| Immobile - 2° piano | 150 Mq | 150 Mqc |
| Totale | 600 Mqc | |
Zoom della mappa
Apri con:
Apple Maps
Google Maps
Waze
Apri la mappa














