Vendita
Capannone industriale a Viguzzolo
VIGUZZOLO (AL)
€ 250.000
PEDEMONTE MASSIMO
PROPONE IN VENDITA
CAPANNONE ENOLOGICO CON PIAZZALE + VILLETTA CON GIARDINO + TERRENO EDIFICABILE
SU AREA COMPLESSIVA DI CIRCA MQ 3.600
A VIGUZZOLO
Gli immobili sono situati ai piedi della Val Curone: zona sempre più ricercata per la coltivazione di vitigni sopratutto del pregiato Timorasso
Ottima posizione adiacente a strada comoda a raggiungere le principali vie di comunicazione che collegano Viguzzolo ai paesi vicini e precisamente a soli 15 minuti dai caselli autostradali (MI-GE) e (TO-PC)
La proprietà, alla quale si accede grazie al comodo cancello automatico, è costituita da: 1 capannone con ampio piazzale di manovra + Villetta indipendente con giardino + 1 area verde edificabile di circa mq 1200
IL CAPANNONE
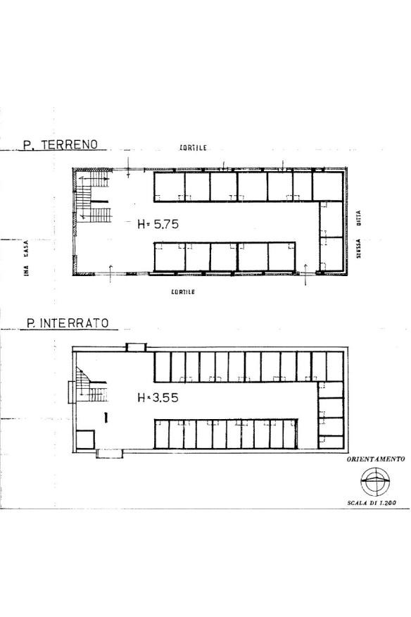
E' disposto su 2 piani aventi una superficie di circa mq 350 per piano
Attualmente strutturato come cantina enologica industriale con una portata totale 9.000 ettolitri, contiene 40 vasche da 160 Ettolitri fino a 300 Ettolitri.
Esternamente dispone di una pesa con portata massima di 150 Quintali.
Possibilità di utilizzare il capannone anche per scopi diversi.
LA VILLA
Si presenta in modiche condizioni di manutenzione.
È disposta su un unico piano abitativo rialzato di circa mq 150 + circa mq 60 di locale cantina al piano interrato.
La parte abitativa, dispone di 2 ingressi (il principale verso il giardino e il secondario verso il cortile adiacente al capannone) è costituita da: ingresso, sala, cucina abitabile, 3 camere, 1 ripostiglio, 2 bagni e 1 balcone
Adiacente alla villa è presente un TERRENO di tipo industriale completamente cintato di circa mq 1.200 attualmente adibita a prato verde/giardino
Tra i due immobili è presente un ampio cortile adatto per spazi di manovra anche per mezzi pesanti
L'intera proprietà comprende una superficie complessiva di circa mq 3.600
PREZZO DI VENDITA DELL'INTERA PROPRIETA'
Eu. 250.000,00 TRATTABILI
VISITATE IL NOSTRO SITO
www.pedemontemassimomediatore.com
CONTATTATECI
per avere tutte le informazioni che desiderate
tel. 0131/868477
e-mail: info@pedemontemassimomediatore.com
CI TROVATE
a Tortona in Via Emilia n. 54 (Piazza Malaspina)
dal lunedì al venerdì
dalle 9.00 alle 13.00 e dalle 15.00 alle 19.00
PROPONE IN VENDITA
CAPANNONE ENOLOGICO CON PIAZZALE + VILLETTA CON GIARDINO + TERRENO EDIFICABILE
SU AREA COMPLESSIVA DI CIRCA MQ 3.600
A VIGUZZOLO
Gli immobili sono situati ai piedi della Val Curone: zona sempre più ricercata per la coltivazione di vitigni sopratutto del pregiato Timorasso
Ottima posizione adiacente a strada comoda a raggiungere le principali vie di comunicazione che collegano Viguzzolo ai paesi vicini e precisamente a soli 15 minuti dai caselli autostradali (MI-GE) e (TO-PC)
La proprietà, alla quale si accede grazie al comodo cancello automatico, è costituita da: 1 capannone con ampio piazzale di manovra + Villetta indipendente con giardino + 1 area verde edificabile di circa mq 1200
IL CAPANNONE
E' disposto su 2 piani aventi una superficie di circa mq 350 per piano
Attualmente strutturato come cantina enologica industriale con una portata totale 9.000 ettolitri, contiene 40 vasche da 160 Ettolitri fino a 300 Ettolitri.
Esternamente dispone di una pesa con portata massima di 150 Quintali.
Possibilità di utilizzare il capannone anche per scopi diversi.
LA VILLA
Si presenta in modiche condizioni di manutenzione.
È disposta su un unico piano abitativo rialzato di circa mq 150 + circa mq 60 di locale cantina al piano interrato.
La parte abitativa, dispone di 2 ingressi (il principale verso il giardino e il secondario verso il cortile adiacente al capannone) è costituita da: ingresso, sala, cucina abitabile, 3 camere, 1 ripostiglio, 2 bagni e 1 balcone
Adiacente alla villa è presente un TERRENO di tipo industriale completamente cintato di circa mq 1.200 attualmente adibita a prato verde/giardino
Tra i due immobili è presente un ampio cortile adatto per spazi di manovra anche per mezzi pesanti
L'intera proprietà comprende una superficie complessiva di circa mq 3.600
PREZZO DI VENDITA DELL'INTERA PROPRIETA'
Eu. 250.000,00 TRATTABILI
VISITATE IL NOSTRO SITO
www.pedemontemassimomediatore.com
CONTATTATECI
per avere tutte le informazioni che desiderate
tel. 0131/868477
e-mail: info@pedemontemassimomediatore.com
CI TROVATE
a Tortona in Via Emilia n. 54 (Piazza Malaspina)
dal lunedì al venerdì
dalle 9.00 alle 13.00 e dalle 15.00 alle 19.00
Contratto Vendita
Rif 114/4
Prezzo € 250.000
Provincia Alessandria
Comune Viguzzolo
Indirizzo Via 1 Maggio">
Vani 4
Classe energetica
Non indicata
Riscaldamento autonomo
Condizioni abitabile
Consistenze
| Descrizione | Superficie | Sup. comm. |
|---|---|---|
| Principali | ||
| Capannone - piano terra | 350 Mq | 350 Mqc |
| Capannone - piano interrato | 350 Mq | 350 Mqc |
| Accessorie | ||
| Immobile - piano rialzato | 150 Mq | 150 Mqc |
| Immobile - piano interrato | 60 Mq | 60 Mqc |
| Terreno - piano terra | 1.200 Mq | 120 Mqc |
| Totale | 1.030 Mqc | |
Zoom della mappa
Apri con:
Apple Maps
Google Maps
Waze
Apri la mappa





























